This website requires JavaScript.
Explore
Help
Register
Sign In
dmolinari
/
wiki-data
Watch
1
Star
0
Fork
0
You've already forked wiki-data
Code
Issues
Pull Requests
Actions
Packages
Projects
Releases
Wiki
Activity
Files
90899d78782911132fa1567190ac8df96b6f2720
wiki-data
/
tecnica
/
varios
/
alarma.md
dmolinari
df77d289d1
Migracion inicial desde DokuWiki
2025-12-01 12:03:30 -03:00
460 B
Raw
Blame
History
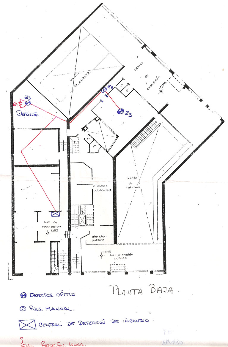
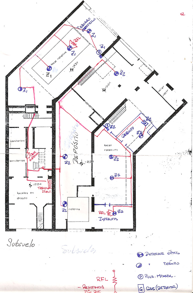
Alarma Diario
Reference in New Issue
View Git Blame
Copy Permalink